佐野1274

1,620万円

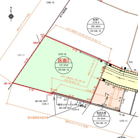
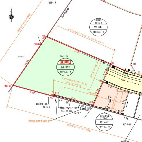
静岡県裾野市佐野1274-10

御殿場線「裾野」駅徒歩12分

東海道本線「三島」駅

価格
1,620万円
坪単価
31.12万円(52.05坪)
所在地
静岡県裾野市佐野1274-10
交通

御殿場線裾野」駅 徒歩12分

東海道本線三島」駅 車17分 6.4km

土地面積(坪数)
172.07㎡(52.05坪)
建ぺい率 / 容積率
60% / 150%

セールスポイント

徒歩6分の距離に裾野市立西中学校があるのも魅力。傾斜地より建築が楽な平坦地です。駅まで徒歩12分でアクセス可能です。土地面積は172.07㎡(実測)です。知識と経験豊富な当社スタッフが、お客様の住まい探しを全力でサポートいたします。不動産探しに関する疑問・質問など何でもお気軽にお問い合わせください。

基本情報

販売区画数
-
総区画数
-
土地面積(坪数)
172.07㎡(52.05坪)
坪単価
31.12万円
私道負担面積
割合
-
セットバック
建ぺい率 /
容積率
60% / 150%
高圧線下面積
-
傾斜地部分面積
-
路地状敷地
-
地目
宅地
地勢
平坦
造成工事
完了予定
-
土地権利
所有権
建築条件
都市計画
市街化区域
用途地域
第一種中高層住居専用
接道状況
一方(東 私道 4.0m 間口 9.4m)
国土法届出要否
不要
最適用途
住宅用地
その他
法令上の制限
景観法/宅地造成及び特定盛土等規制法/日影制限有
取引態様
売主
現況
更地
引渡条件
現況渡
引渡時期
即時
開発許可番号
-
取引条件の
有効期限
2026年02月22日

設備条件

設備条件
  • 閑静な住宅地 / 仲介手数料無料 / プロパンガス / 公営水道 / 公共下水 / 電気有
設備(その他)
    -

その他

物件番号
98730342
管理コード
-
情報更新日
2026年02月08日
次回更新予定日
2026年02月22日
取扱会社
  • 東名地産株式会社
  • 静岡県裾野市佐野820-1 
  • TEL:0559934281
  • 静岡県知事 (14) 第2715号
  • 静岡県宅地建物取引業協会 
    全国宅地建物取引業保証協会 
    東海不動産公正取引協議会   
    不動産コンサルティング中央協議会 
    賃貸不動産管理業協会 

周辺施設

  • 裾野市立西小学校の画像

    小学校

    裾野市立西小学校

    273m(4分)

  • 西保育園の画像

    保育園

    西保育園

    346m(5分)

  • 裾野市立西中学校の画像

    中学校

    裾野市立西中学校

    446m(6分)

  • ベルシティ裾野の画像

    ショッピングセンター

    ベルシティ裾野

    561m(8分)

  • 大坂屋クリニックの画像

    内科

    大坂屋クリニック

    577m(8分)

  • 裾野市立西幼稚園の画像

    幼稚園

    裾野市立西幼稚園

    580m(8分)

  • マックスバリュ 裾野店の画像

    スーパー

    マックスバリュ 裾野店

    698m(9分)

  • 裾野市役所の画像

    市役所・区役所

    裾野市役所

    756m(10分)

  • 大橋内科小児科医院の画像

    内科

    大橋内科小児科医院

    768m(10分)

  • 裾野赤十字病院の画像

    総合病院

    裾野赤十字病院

    1164m(15分)

支払いシミュレーション

月々の支払額
9.6
購入希望物件価格
万円
頭金
万円
金利
%
返済額(ボーナス1回分)
万円
返済期間

※ボーナスは自動で年2回分で計算されます。

近隣の物件

  1. 裾野市石脇売地

    裾野市石脇

    - (328.00㎡)

    2,000万円

  2. 裾野市茶畑売地

    裾野市茶畑

    - (170.00㎡)

    150万円

  3. 桃園売地

    裾野市桃園

    - (323.96㎡)

    890万円

  4. 裾野市佐野389売地

    裾野市佐野

    - (271.00㎡)

    1,700万円

佐野1274

佐野1274

1,620万円

-(172.07㎡)

お気軽にお問い合わせください

無料お問い合わせ

東名地産株式会社

0559934281

8:30~17:00

(休:祝日)